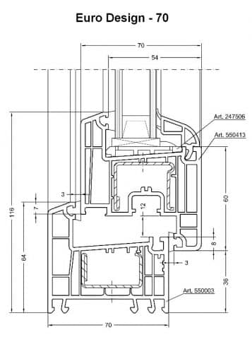
Euro-Design 70
Euro‑Design 70 su prozorski profili za manji budžet i pružaju izuzetno puno svetla. Zahvaljujući posebno tankoj konstrukciji, ostaje više mesta za staklo. A to podiže atmosferu. Jer divan pogled i sunčeva svetlost značajno doprinose Vašoj dobrobiti.
Prednosti
- Svetlošću obasjane prostorije
- Izvanredan izbor boja i oblika za Vaše individualne želje
- Bezbednost u svoja četiri zida zahvaljujući izuzetnoj zaštiti od provala
- Odlična zaštita od buke za miran san
- Veća udobnost stanovanja zbog savršene termoizolacije
- Veoma lako čišćenje zahvaljujući jedinstvenoj završnoj obradi visoke definicije (HDF)
| Karakteristika | Vrednost |
|---|---|
| Toplotna izolacija (Uw) | do 1,3 W/m²K |
| Zvučna izolacija (Rw) | 45 dB |
| Zaštita od provala | do RC2 |
| Sistemska dubina | 70 mm (linijski stil) |
| Broj komora | 5 |
| Debljina stakla | do 41 mm |
| Zaptivne gume | Po obodu — zaštita od promaje i vlage |
| Propustljivost vazduha | Klasa 4 |
| Nepropusnost za udare kiše | Klasa 9A |
| Otpornost na vetar | Klasa B5 |
Doživećete slobodu
i boja i oblika
Izaberite neku od mnogobrojnih arhitektonskih mogućnosti preko individualnih oblika, npr. kružnih, kosih i trougaonih, kao i lučnih prozora sa stubovima.
Pronađite svoju individualnu boju među više od 220 dekora. Ovde nema granica za Vašu maštu. Naš spektar boja KALEIDO COLOR daje Vam potpunu slobodu dizajna: bilo da se radi o aktuelnim metalnim tonovima, toplom izgledu drveta ili pastelnoj koja je u trendu – KALEIDO COLOR ispunjava svaki individualni zahtev za boju.
Pronađite svoju individualnu boju među više od 220 dekora. Ovde nema granica za Vašu maštu. Naš spektar boja KALEIDO COLOR daje Vam potpunu slobodu dizajna: bilo da se radi o aktuelnim metalnim tonovima, toplom izgledu drveta ili pastelnoj koja je u trendu – KALEIDO COLOR ispunjava svaki individualni zahtev za boju.